Total Free Customer Care
Need Live Support?
Call for Assistance
Need Live Support?
behind Shreekhetra Greenwood, Shreekhetra Residency Rd, Mauja, Shankarpur, Bhubaneswar, Odisha 751019
₹6,890/ sq.ft



































2.73 acres
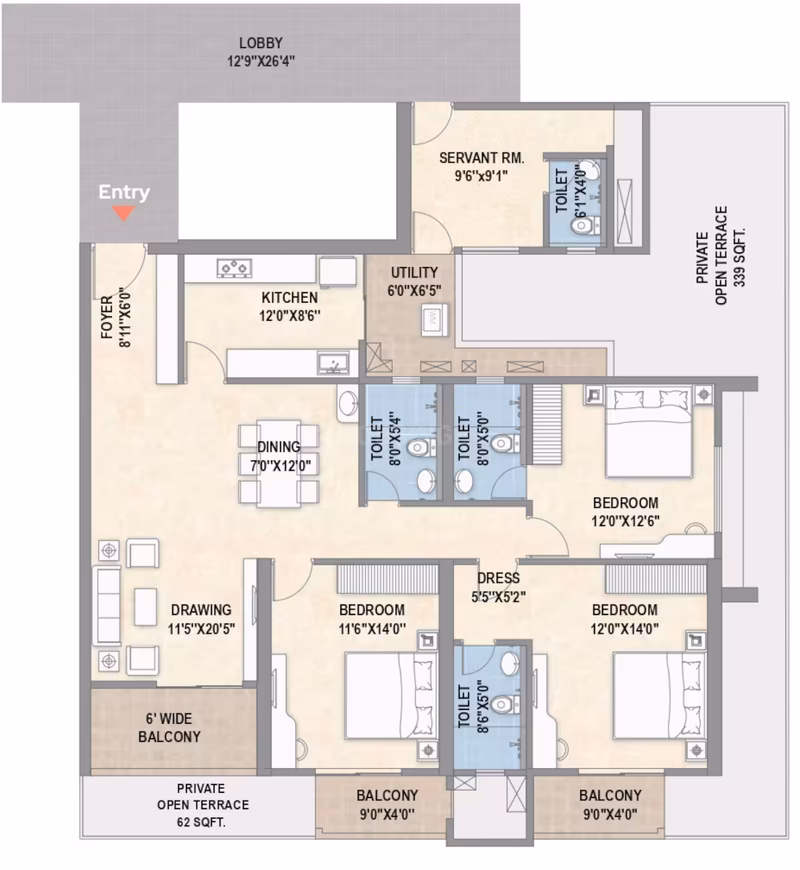
2 Buildings - 240 units
2,026 sq ft - 3,017 sq ft
Sept 2023
₹6,890/sq ft
Mar 2028
3, 4 BHK Apartments
RP/19/2023/01009
Located in the serene neighborhood of Patrapada, Bhubaneswar, Shreekhetra Greenpark offers you a perfect blend of affordability, luxury, and convenience. With spacious 3 & 4 BHK apartments designed for modern living, this is your chance to own a home in a prime location near AIIMS Bhubaneswar. Experience unmatched amenities, excellent connectivity, and a vibrant community.
"Shreekhetra Greenpark" is our most cherished Green Building Concept Project, after towered success of Shreekhetra Greenwood which stands as a neighbour in the same vicinity. Greenwood buyers have occupied since two and half years. All enjoying well with a peace of mind.
We ensure satisfaction for value, pride as an Owner, botheration free & friendly environment to our buyers.
It comprises two vertical towers of twenty two floors over envelop basement, with 2-Stilt Parking in each. Each Flat is fully independent of the other. Internal Decent Planning, abundant ventilation, provision for modern automation in all Flats. All high end & latest building items provided. Recreation facilities in the Club provided for optimum use.
State
City
Locality
Odisha
Bhubaneswar
Shankarpur
Car Parking
Visitor Parking
CCTV
Water Supply 24x7
Creche
Party Hall
Banquet Hall
Club House
Multipurpose Hall
Gated Community
Utility Shops
Security 24x7




Nirvana Eye Hospital
Distance: 2 km
Manipal Hospitals, Bhubaneswar | Best Multispeciality Hospital in Bhubaneswar
Distance: 4 km
Loyola Hospital
Distance: 2.5 km
Lingaraj Temple Road Railway Station
Distance: 8 km
Biju Patnaik International Airport
Distance: 10.5 km
Bhubaneswar Baramunda Bus Stand
Distance: 5 km
DN Regalia Mall (DN Homes LTD.)
Vikash Residential School
St.XAVIER PUBLIC SCHOOL,PATRAPADA
Choose your preferred day

We had a humble beginning, about twenty five years ago in a small town called Berhampur in Odisha, over the years it moved from scratch to northwards and achieved prominent height, not in term of building heights, but its recognition as a popular Real Estate Developer in the state. We are committed not only to upkeep the tradition but also striving to improve our offerings for amenities as well as the services after sale, thus becoming an indispensable choice of every buyer for "A HOME".
Call for Assistance
Need Live Support?
© 2018 - 2026, ARP Realty - All rights reserved